Beschrijving
In de populaire woonwijk Schutterswei, op loopafstand van de oude Rijn en de winkels op de Rijnstraat, staat deze goed onderhouden en verzorgde tussenwoning met een grote tuin, carport en een ruime schuur. De zonnige tuin op het zuidwesten maakt het plaatje compleet.
Indeling
Je betreedt het huis via een gang met een praktische trapkast, een toiletruimte, gecombineerd met een wasruimte met aansluitingen voor wasmachine en droger. Vanuit de hal leidt de trap naar de bovenverdieping.
De ruime keuken is voorzien van volop kastruimte en diverse inbouwapparatuur, waaronder een koel-vriescombinatie, oven, vaatwasser en gasfornuis. Ook de Cv-installatie is hier netjes weggewerkt.
Aansluitend kom je in de sfeervolle woonkamer met uitzicht op de fraai aangelegde achtertuin. Via de openslaande deur stap je zo de tuin in, waar je volop van de zon kunt genieten. Aan de achtergevel zorgt een automatisch zonnescherm voor verkoeling op warme dagen, terwijl aan de voorzijde van de woning screens zijn geplaatst voor extra comfort.
Eerste verdieping
Op de eerste verdieping bevinden zich twee royale slaapkamers die grenzen aan de overloop, samen met de badkamer. De achterslaapkamer was oorspronkelijk opgedeeld in twee kamers, wat eenvoudig opnieuw te realiseren is.
De badkamer is volledig betegeld en voorzien van een zwevend toilet, een wastafelmeubel, een douchecabine en een ligbad. Daarnaast is er comfortabele elektrische vloerverwarming aanwezig.
De overloop beschikt over een verlaagd plafond (2,25 m), waarboven een praktische vliering is gecreëerd voor extra opslagruimte.
Tuin
De achtertuin, volledig betegeld en gelegen op het westen, biedt een heerlijke plek om van de middagzon te genieten. Zo’n 30 jaar geleden werd er een druivenplant geplaatst, die inmiddels de hele tuin siert met prachtige druiventrossen. In het verleden werd hier met plezier druivensap en jam van gemaakt.
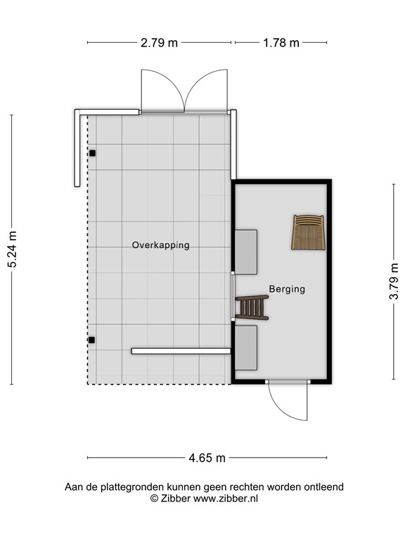
De tuin is praktisch ingedeeld met een zitgedeelte direct grenzend aan de woonkamer, terwijl aan de achterzijde een carport is gesitueerd.
Aan de voorzijde van het huis is ook een smalle strook van privé grond, je kunt ook daar heerlijk zitten en genieten van de ochtend zon.
Bijzonderheden
Goed om te weten:
- Royale achtertuin met carport, waardoor parkeren op eigen terrein mogelijk is.
- Compacte en efficiënte indeling.
- Snelle oplevering mogelijk.
- Energielabel C, geldig tot en met 2032.
Gebruiksoppervlakte wonen: De meting van de woonoppervlakte is uitgevoerd volgens de NEN2580 Meetinstructie. Deze methode biedt een uniforme manier van meten en geeft een indicatie van de gebruiksoppervlakte. Houd er rekening mee dat kleine afwijkingen mogelijk zijn door interpretatieverschillen, afrondingen of praktische beperkingen tijdens het meten.
Plattegronden
178056286_1583983_schut_begane_grond_first_design_20251015_b05749.jpg
178056286_1583983_schut_berging_first_design_20251015_fe0238.jpg
178056286_1583983_schut_eerste_verdiepi_first_design_20251015_eb19dd.jpg
178056286_1583983_schut_vliering_first_design_20251015_6c04ac.jpg