Beschrijving

Jouw eerste eigen plek? Dit is ‘m!

Ben jij starter op de woningmarkt en droom je van een fijne, betaalbare woning ? Dan is dit charmante 2-kamerappartement (47m²) in het geliefde Rijnsoever dé kans om je woondroom waar te maken. Gelegen in een kleinschalig appartementencomplex, biedt dit hoekappartement op de tweede woonlaag alles wat je nodig hebt: rust, comfort en op loopafstand vind je het winkelcentrum van HoornesPassage.

Strand, duinen en gezelligheid om de hoek en wonen in Rijnsoever betekent genieten van de natuur en gezelligheid. 

Waarom dit appartement perfect is voor jou als starter:

- Compact en praktisch ingedeeld: ideaal als eerste woning
- Hoekligging voor extra licht en privacy
- Kleinschalig complex met een prettige sfeer
- Centrale ligging met alls binnen handbereik.

Kortom: een unieke kans om zelfstandig te wonen op een fantastische plek. Klaar om je eigen sleutel in handen te krijgen? ️

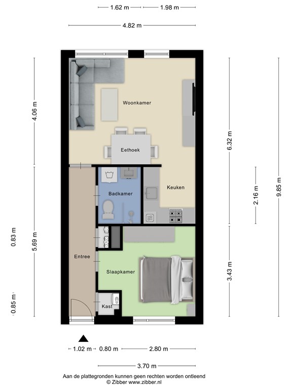
Indeling

Entree op 1e verdieping, smalle gang die toegang biedt tot alle vertrekken, woonkamer voorzien van laminaat vloer. Halfopen keuken voorzien van 4-pitsgasfornuis, oven/combimagnetron en koelkast. Slaapkamer met voldoende kastruimte, badkamer voorzien van douche, wastafel toilet en opstelling was/droogcombinatie. Separate ruimte met CV-opstelling.

Bijzonderheden

Goed om te weten:
- Actief VvE beheer: start verduurzamingstraject in 2026. Alle houten kozijnen en glas worden vervangen door o.a. kunststofkozijenen en HR glas.
- Maandelijkse bijdrage:  €104.50 p.m. 
- CV-ketel in eigendom

Aanvullende details: 
- Snelle oplevering mogelijk
- Clausule niet zelfbewoning wordt opgenomen in de koopovereenkomst.

Gebruiksoppervlakte wonen: De Meetinstructie is gebaseerd op de NEN2580. De Meetinstructie is bedoeld om een meer eenduidige manier van meten toe te passen voor het geven van een indicatie van de gebruiksoppervlakte. De Meetinstructie sluit verschillen in meetuitkomsten niet volledig uit, door bijvoorbeeld interpretatieverschillen, afrondingen of beperkingen bij het uitvoeren van de meting.

Kenmerken